selldorf spring thompson exterior01

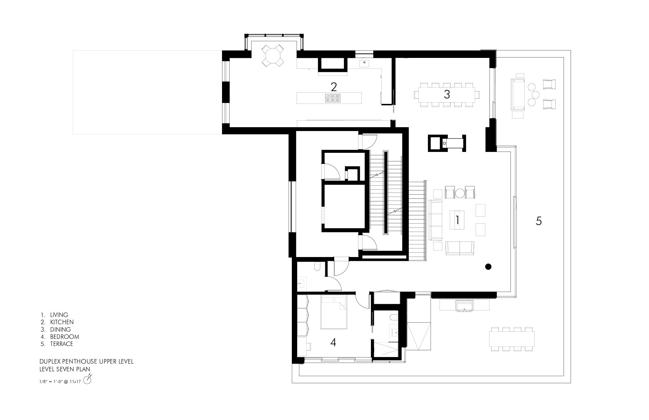
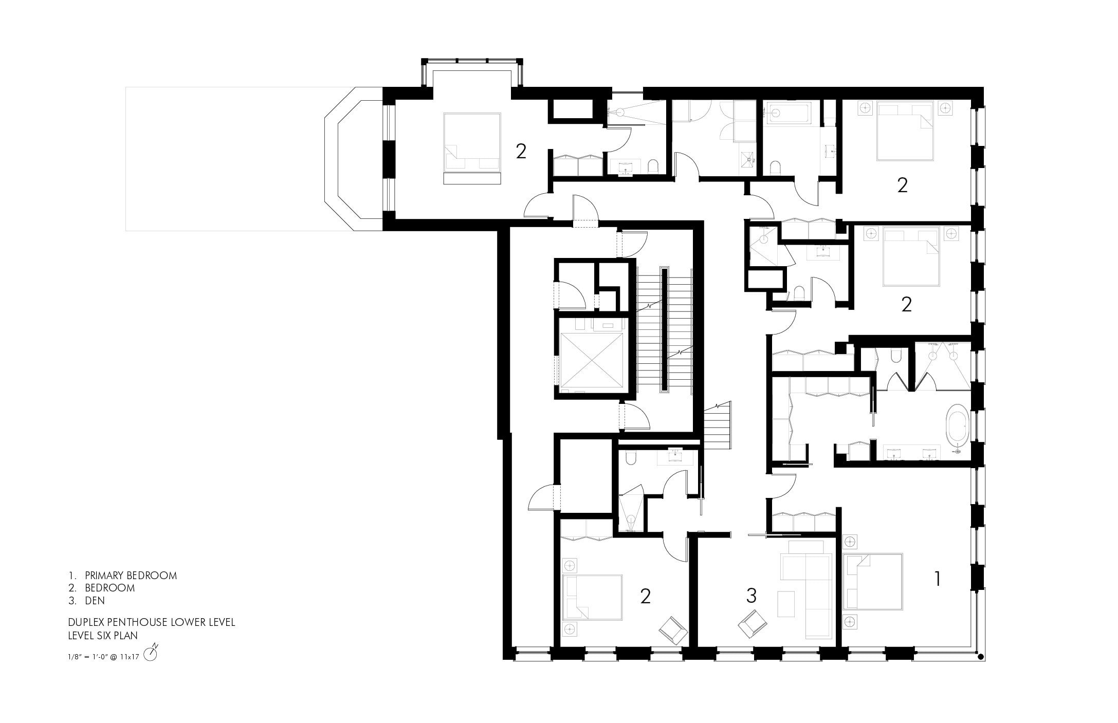
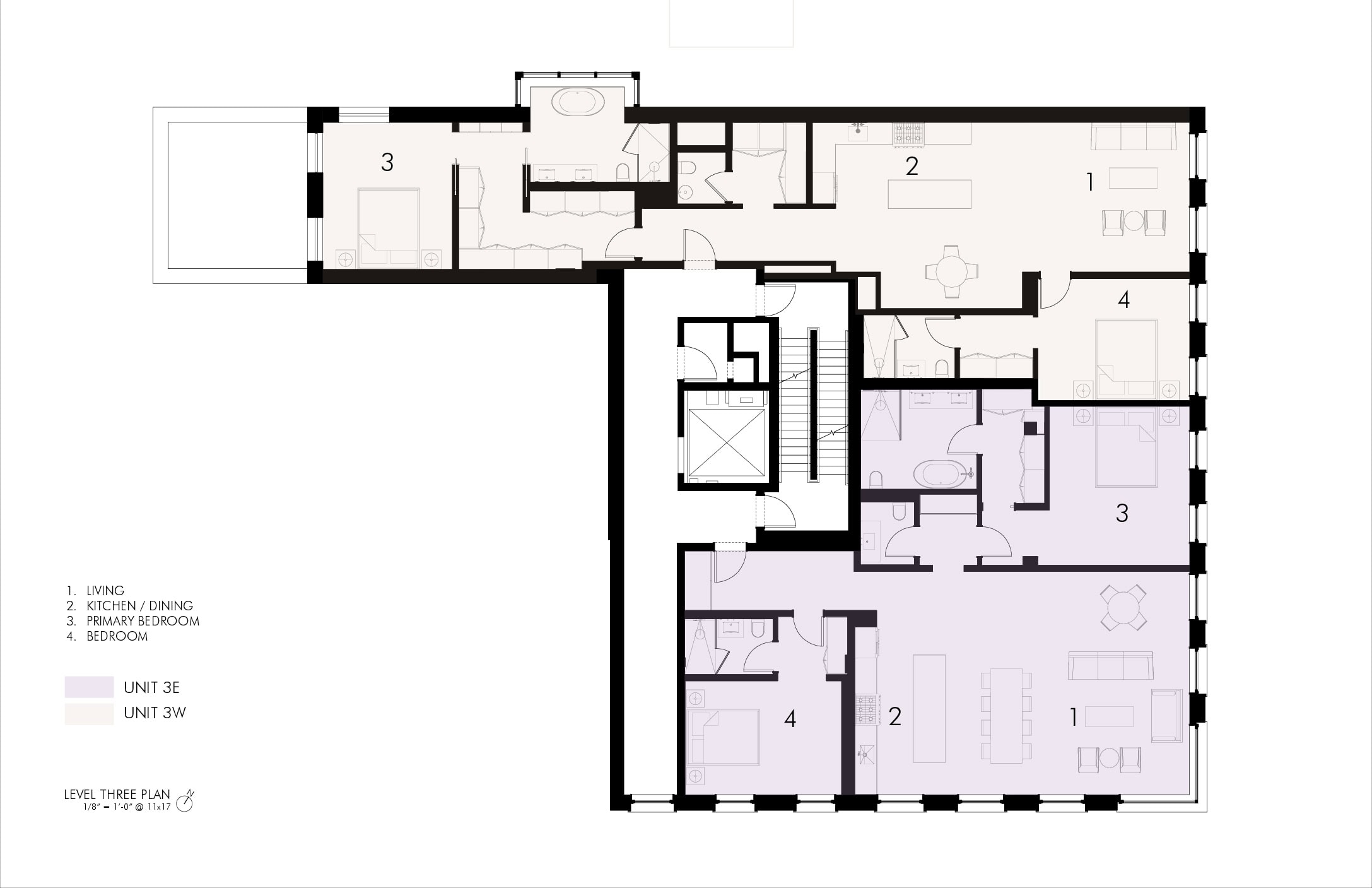
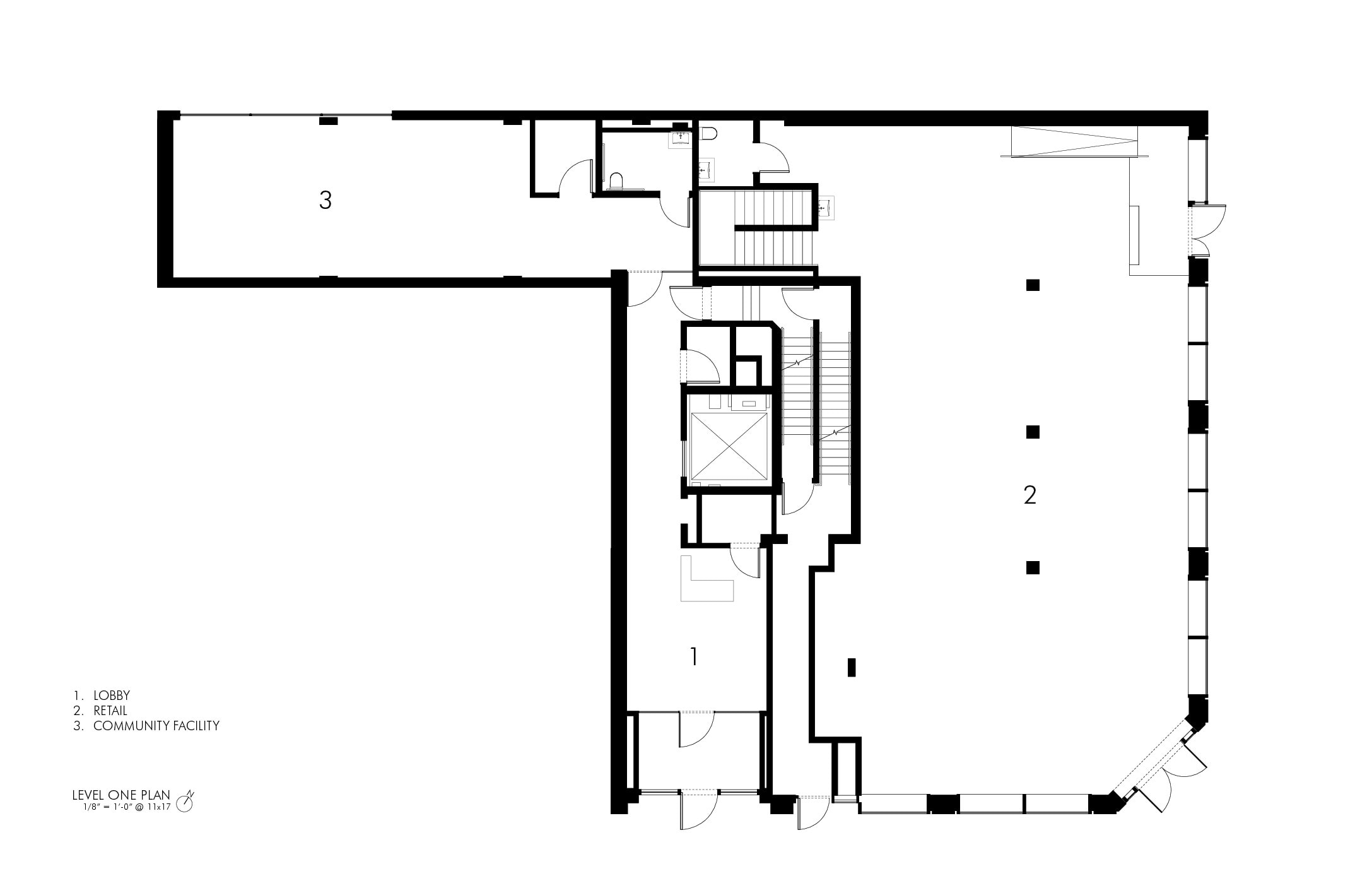
Located in the Landmarked district of SoHo, Spring + Thompson is a new seven-story residential condominium building that engages its context, embracing the eclectic mix of building types that define the neighborhood. The 30,000 sf building is comprised of seven units including one duplex penthouse with a private terrace. At the ground floor, a community facility and retail space with full-height windows welcome the public. Expansive, loft-like units and thoughtful materiality establish a seamless, vibrant presence that resonates with the essential qualities of Soho’s iconic lofts and history as a nexus of creativity.

Read more Close

The building’s exterior, composed of red brick with terracotta detailing, grounds it in a dialogue with the neighboring architecture. Matte terracotta frames the storefront at ground level with a gloss finish deployed for the window surrounds above the datum. The punched windows, which are uniformly placed while varied in size, further respond to the rhythm of Soho’s diverse and adaptive residential fabric.

Units are gracious yet intimate in scale. Generous corner living spaces and lofty 9’6” ceilings create settings that are ideal for hosting and personal comfort. Large, deep-set tilt/turn windows invite natural light and wide views of the SoHo streetscape, cultivating a sense of place. Kitchens feature full-height mahogany cabinetry and central islands with custom Lavastone countertops. The building is equipped with a gym and infrared sauna, a roof terrace, storage, and a 24-hour concierge. Warm, restrained interiors such as wide-plank oak floors and mahogany and sapele window surrounds evoke a continuous sense of craft throughout.

  • Location:New York, NY
  • Size:30,000 sf
  • Date:2025

(Photography: The Corcoran Group)